Vorheriger Eintrag Nächster Eintrag

Einfamilienhaus Guggenbüel, Baar

Vorheriger Eintrag Nächster Eintrag

Einfamilienhaus Guggenbüel, Baar

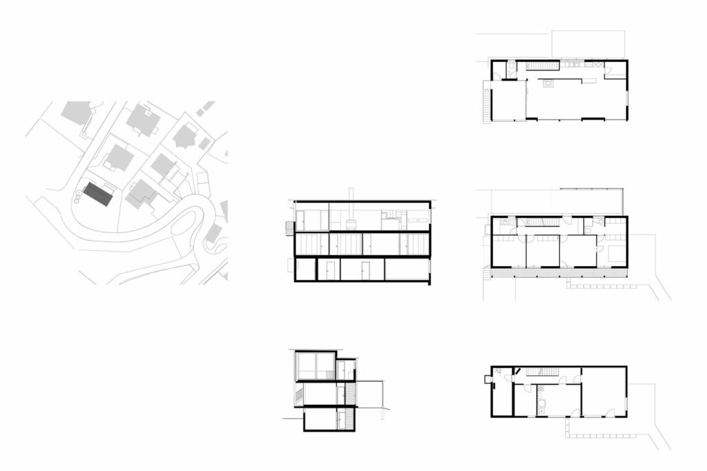
Der klar gegliederte, kubische Holzbau (Homogen 80) steht auf einem in den Hang hinein geschobenen Untergeschoss aus Beton. Die verschiedenen Gebäudeteile, einerseits mit gestrichenen, hinterlüfteten Dreischichtplatten, andererseits mittels horizontaler Holzschalung verkleidet, dokumentieren die ihnen zugeteilten Funktionen.

 

Bauvollendung
2000

Standort
Guggenbüel, Baar

Bauherrschaft
Privat

Auftragsart
Direktauftrag

Tätigkeit
Projektierung, Planung, Ausführung
Thomas Baggenstos bei hwp Architekten AG

Bilder
Reinhard Zimmermann