Schulhaus SchuLpLus, Oberägeri

Schulhaus SchuLpLus, Oberägeri

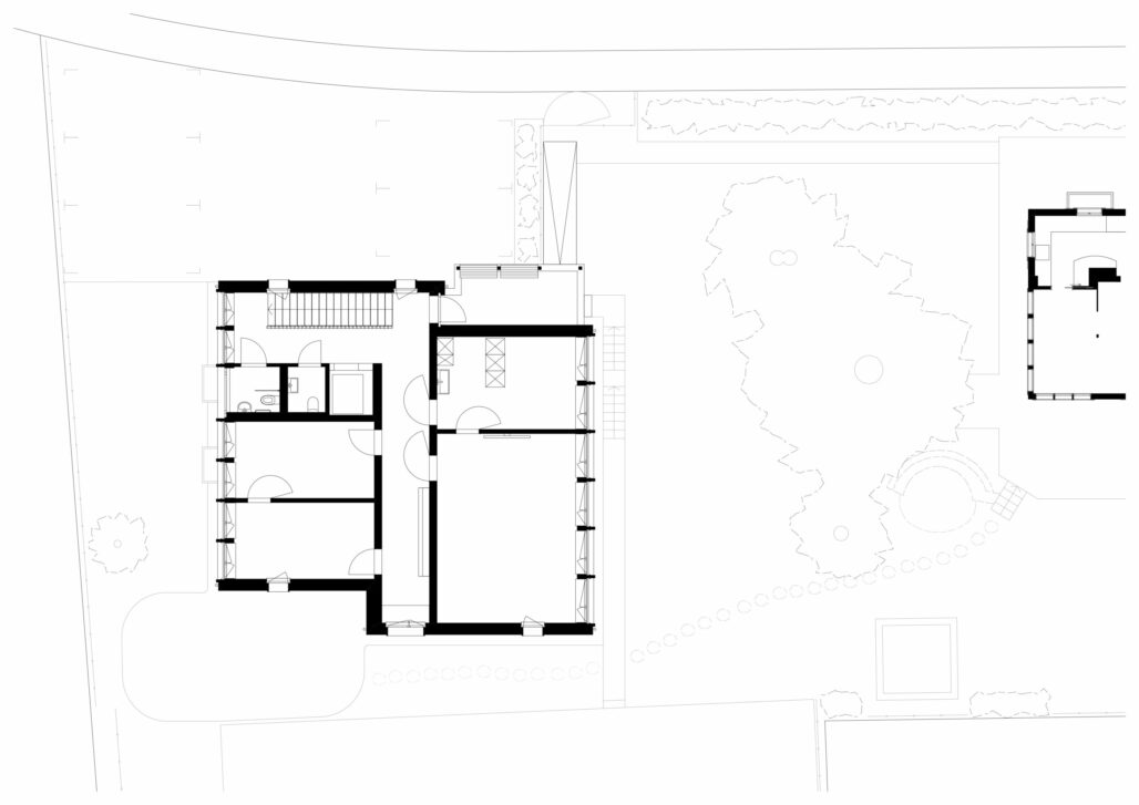
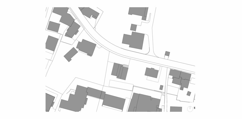
Das neue Gebäude ist in einen parkähnlichen Freiraum gesetzt und nimmt einen respektvollen Abstand zu den umliegenden, denkmalgeschützten Bauten entlang der Mitteldorfstrasse ein. Die Umgebung, die sich hinter der Einfriedung zwischen dem Neubau und der historischen Villa aufspannt, ist von einem alten Baumbestand geprägt. Dieser Charakter bleibt durch eine zurückhaltende Umgebungsgestaltung und angepasste Bepflanzungen weitgehend bestehen. Die Parkierung wird dem Neubau vorgelagert, so dass ein grosszügiger Vorplatz entsteht, von wo eine Rampe zur leicht erhöhten Pausenhalle und zum Eingang führt.

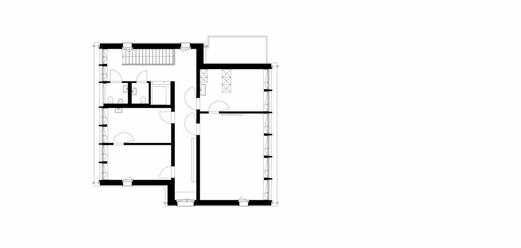
Das Gebäude ist durch einen zentralen Korridor in zwei Hälften gegliedert. Die beiden Gebäudehälften sind wiederum entlang zweier statischer Raster organisiert, wobei eines regelmässig und eines unregelmässig angeordnet ist. Diese Organisation erlaubt es, mit einer differenzierten Grundrissgestaltung auf das geforderte Raumprogramm zu reagieren. Dabei werden die Bedürfnisse einer modernen Schule und die Anforderungen an einen zeitgemässen Unterricht optimal umgesetzt. Der Versatz im Gebäudevolumen wird zusätzlich durch die Ausformulierung des Dachs unterstützt und führt zu einer im Massstab angepassten Wahrnehmung des Schulbaus. Die leichte Hanglage ermöglich es, das Untergeschoss ins Terrain abzusenken, trotzdem eine gute Belichtung in den Innenräumen zu bewahren und das Gesamtvolumen auf einer angepassten Höhe zu halten. Einer optimalen Orientierung eines Schulbaus entsprechend, sind die Nord- und Südfassaden weitgehend geschlossen gestaltet, während die Ost- und Westfassaden von weitläufigen Fensterflächen geprägt sind. Die hölzerne Materialisierung der Gebäudehülle orientiert sich an den umliegenden Bauten und verweist durch seine zurückhaltenden Farbtöne dennoch auf die Nutzung des Hauses.

Bauvollendung
2025

Standort
Mitteldorfstrasse, Oberägeri

Bauherrschaft
Stiftung schuLpLus, Oberägeri

Auftragsart
Direktauftrag

Tätigkeit
Projektierung und Planung