Schulanlage Sunnegrund, Steinhausen

Schulanlage Sunnegrund, Steinhausen

Wettbewerb | 1. Rang

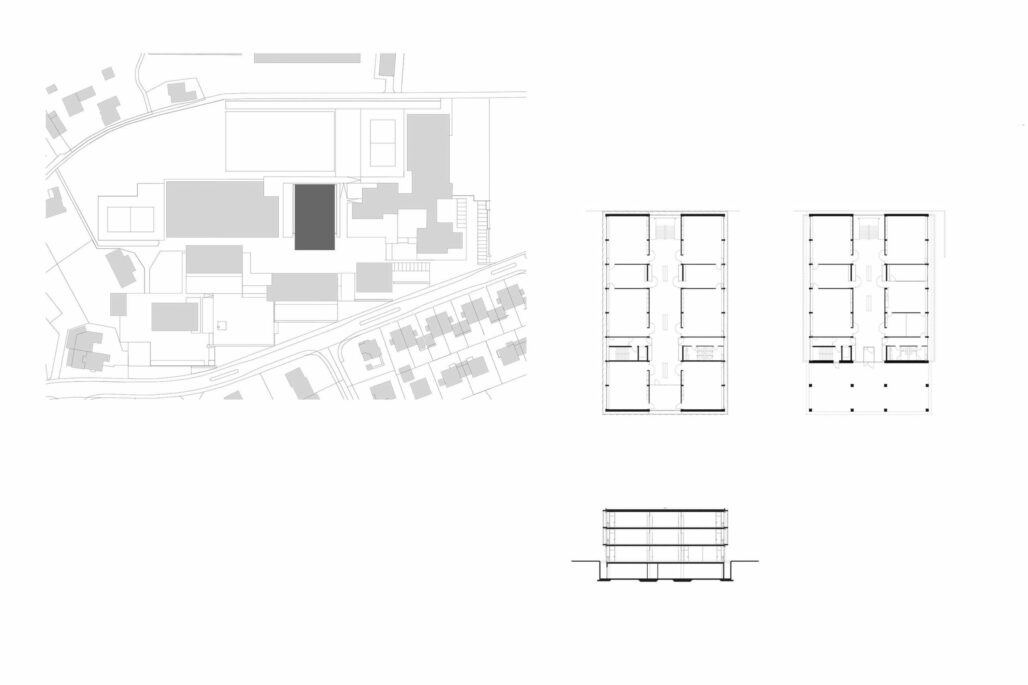
Zwischen 2001 und 2005 wurde die gesamte Schulanlage Sunnegrund saniert und um zwei Neubauten erweitert. Die bestehenden Schultrakte Sunnegrund 1 bis 4 blieben in Bezug auf ihre Struktur weitgehend unverändert. Bei den Trakten 2 und 3 wurden umfangreiche Aussensanierungen vorgenommen. Bei sämtlichen bestehenden Trakten wurden im Innern die Klassenzimmer auf den neu definierten Schulstandard gebracht. Mit dem neuen Schulhaus Sunnegrund 5 und dem Schulleitungsgebäude SL wird die Geschichte fortgesetzt, welche mit dem Bau des Schulhauses Sunnegrund 1 im Jahre 1937 anfing.

 

Bauvollendung
2004

Standort
Sunnegrund, Steinhausen

Bauherrschaft
Einwohnergemeinde Steinhausen

Auftragsart
Wettbewerb I 1. Rang

Tätigkeit
Thomas Baggenstos bei hwp Architekten AG

Bilder
Reinhard Zimmermann