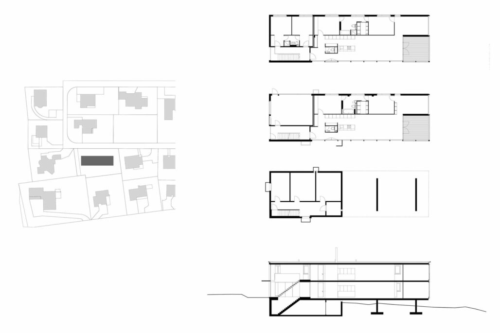
Zweifamilienhaus Holenstrasse, Deitingen

Zweifamilienhaus Holenstrasse, Deitingen

Der neue Holzbau steht an erhöhter Lage über dem Dorf und geniesst die traumhafte Aussicht über das Aaretal auf den Jura Südfuss. Der nicht unterkellerte Teil des 27 m langen Gebäudes schwebt leicht über dem Boden und lässt den Betrachter den gewachsenen Geländeverlauf spüren.

 

Bauvollendung
2004

Standort
Holenstrasse, Deitingen

Bauherrschaft
Privat

Auftragsart
Direktauftrag

Tätigkeit
Projektierung, Planung, Ausführung
Thomas Baggenstos bei hwp Architekten AG

Bilder
Reinhard Zimmermann